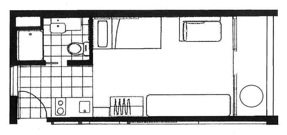
Large Studio, (approx 22m sq.), with Balcony

A well-presented; boutique style student accommodation building located in a quieter street opposite Lincoln Park and is just metres from the CBD, Universities, public transport and Lygon Street. Situated within the University of Melbourne campus precinct and conveniently located 50 meters from the RMIT campus precinct. Its location is also close to Melbourne's shopping (walk to Victoria Markets), entertainment and café areas, including Melbourne's famous Italian food district - Lygon Street.

There is a coin-operated laundry available for the exclusive use of residents. The building has been designed to include the latest security features, including security intercom, security cameras and security card access to all rooms.

* Images for illustrative purposes only.

1 1
Available Leased
Address 506, 139 Bouverie St, Carlton
Price Deposit Taken
Property Type Rental
Property ID 1265
Category Apartment

Agent Details

Rental Office photo

Rental Office

0483 852 318
View Profile